levantamientos arquitectónicos
Clínica Universitaria Colombia
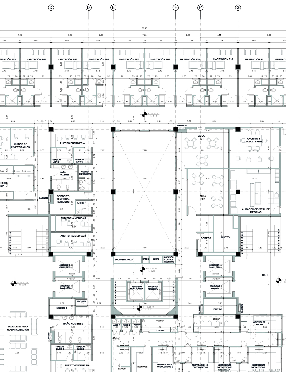
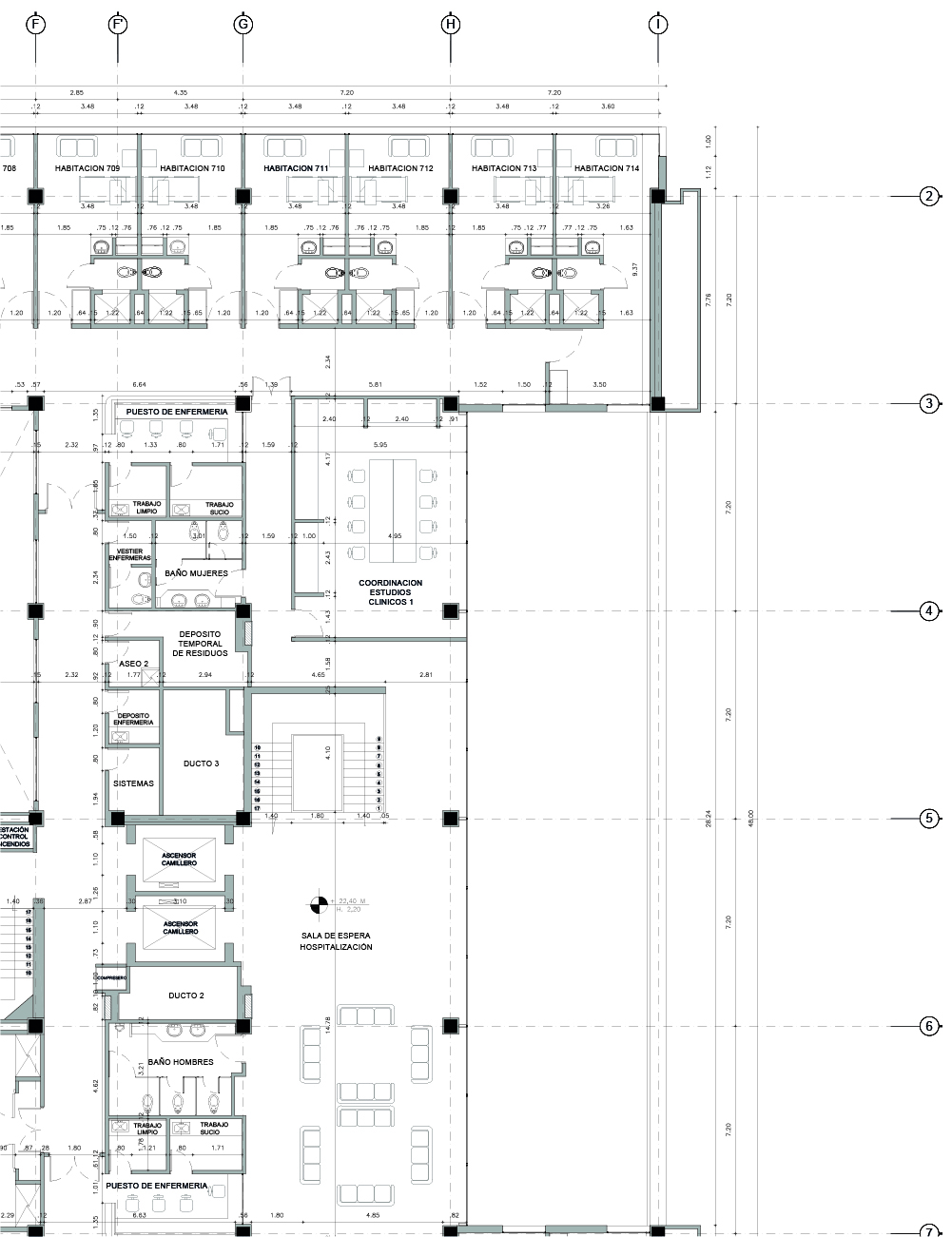
En el marco del proyecto para la Clínica Universitaria Colombia, llevamos a cabo un detallado levantamiento arquitectónico en LOD 200 en un transcurso de 2 meses. Este abarcó no solo la configuración de las plantas del edificio, sino también la integración de su mobiliario correspondiente. En su totalidad, el levantamiento comprendió un área de 22.543 m2, garantizando una documentación integral y precisa para el desarrollo óptimo del proyecto.
Más de nuestro trabajo
Diseño interior
Diseño Arquitectónico
Mobiliario
Visualización de espacios
Construcción y remodelación
Levantamientos Arquitectónicos
Contáctanos
y diseñemos juntos
jmhernandez@arquidez.com
+57 321 2070244
conceptojls@arquidez.com
+57 310 8644965
Calle 136 # 56a-03




